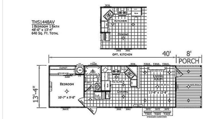
model, a spacious 640 sq. ft. single-section tiny home that embodies the essence of tiny living with double the space. This thoughtfully designed home features:
– A ductless mini-split A/C and heat system with dual wall heads and exterior condenser
– A tile shower and raised bar with dishwasher, preserving kitchen storage space
– Clerestory windows paired with large picture windows, flooding the space with natural light
– A charming front porch for outdoor relaxation
Enjoy the comforts of a larger home in a compact footprint. Priced at $99,500, this package includes:
– All showcased upgrades and options
– Delivery and tie-downs within 100 miles (additional freight charges apply)
– Installed ductless A/C and heat system
– Temporary wooden steps
– Manufacturer’s warranty and extended warranty





























Reviews
There are no reviews yet.