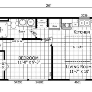
399 sq.ft RV

$40,850.00

Category: